+39 06 86212279 (r.a.)
info@wpsrl.it
wohler-partners
Home
Vendite
Affitti
Attività
Turistici
Chi siamo
Servizi
Contatti
Ricerca rapida
Codice
Tipologia
Vendite
Affitti
Attività
Turistici
Categoria
Qualsiasi
1 locale
2 locali
3 locali
4 o più locali
Appartamento
Attico
Baita
Cantina
Capannone
Casa singola
Contratto breve durata
Crotto
Dépendance
Duplex
Garage
Hotel
Laboratorio
Loft
Magazzino
Maisonette
Mansarda
Negozio
Porzione di Casa
Porzione Villa
Posto Auto
Posto Barca
Rustico/Casale
Stanza
Terreno
Trullo
Ufficio
Villa
Villa Bifamiliare
Villetta schiera
Città
Tutte
Arzachena (SS)
Roma (RM)
Zona
Tutte
Descrizione
Prezzo (da - a)
-
Mq (da - a)
-
Ordine
Inserimento
Codice
Categoria
Città
Zona
Prezzo
Metri quadri
Cerca
Scheda Immobile
<< Torna indietro
Tweet
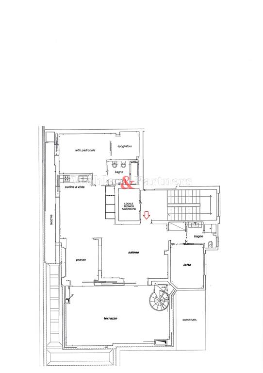
SUPERATTICO - VIGNA CLARA
Codice A000811
Prestigioso superattico ristrutturato vuoto (solo cucina moderna arredata ed accessoriata) luminosissimo in palazzina in cortina con portiere, salone, pranzo con affaccio sul terrazzo a livello di circa mq.30 + terrazzo sovrastante di altri circa mq.80 con predisposizione per vasca idromassaggio - cucina a vista moderna arredata ed accessoriata - 1 camera da letto padronale con bagno e spogliatoio interno - 1 camera da letto con bagno - lavanderia .
=========================================================
A parte forse la possibilità di posto auto all'aperto per una Smart ad € 150 mese oppure posto auto normale in box condiviso ad € 250 mese
========================================================
CONTRATTO ANNI 4 + 4 CON POSSIBILITA' DI AFFITTARE ANCHE A SOCIETA' - REFERENZIATI CON REDDITO DIMOSTRABILE
========================================================
SI RICHIEDE A GARANZIA FIDEJUSSIONE BANCARIA DI IMPORTO SEMESTRALE
========================================================
*Le presenti informazioni sono indicative e non vincolanti, e non configurano alcun presupposto contrattuale*
Prezzo
3.700,00 EUR
Spese condominiali
600,00 EUR
Mq
120
Classe
G
Locali
5
Camere
3
Bagni
2
Stato Immobile
Ristrutturato
Grado
Signorile
Panorama
Vista Aperta
Piano
Quinto
Orientamento
Sud
Totale Piani
Cinque
Lati Liberi
3
Arredi
Solo Cucina
Tipo Soggiorno
Salone
Tipo Cucina
A Vista
Riscaldamento
Autonomo
Tipo Riscaldam.
Caldaia
Tipo Impianto
Termosifoni
Fonte Energetica
Metano
Acqua Calda
Autonoma
Raffrescamento
Split
Infissi
Legno Doppio Vetro
Pavim. Giorno
Parquet
Pavim. Notte
Parquet
Pavim. Cucina
Parquet
Pavim. Bagno
Ceramica
Cauzione
Non Richiesta
Canoni Anticipati
Un Mese
Tipo Contratto
4+4 Anni
Accessori
Antifurto, Aria Condizionata, Armadio a muro, Ascensore, Doppi Vetri, Fibra Ottica, Impianto Satellitare, Lavanderia, Porta Blindata, Portineria/Custode
Richiedi informazioni
Compila questo modulo per inviarci una mail
di richiesta informazioni per questo immobile
Riferimento Immobile
Nominativo
Telefono
Email
Testo richiesta
Autorizzo il trattamento dei miei dati personali in base Regolamento UE n. 679/2016 -
Privacy Policy
Tutti i campi sono obbligatori
Invia
Mantieni impostazioni di default X
Uso dei cookies
Questo sito fa uso di cookies. I nostri cookies (propri) e quelli dei nostri Partners (cookies di terzi) servono per poterti offrire un'esperienza unica con noi. Per questo motivo, insieme ai nostri partners, raccogliamo e processiamo informazioni non sensibili (come l'identificatore del tuo dispositivo o le pagine che visiti).
In qualsiasi momento potrai eliminare, modificare o verificare le informazioni che condividi in
Cookie preference
o nella nostra
Cookie Policy
e
Privacy Policy
.
Necessari
Funzionali
Profilazione
Analitici
Accetta tutti
Rifiuta tutti
Accetta selezionati
Cookie preference